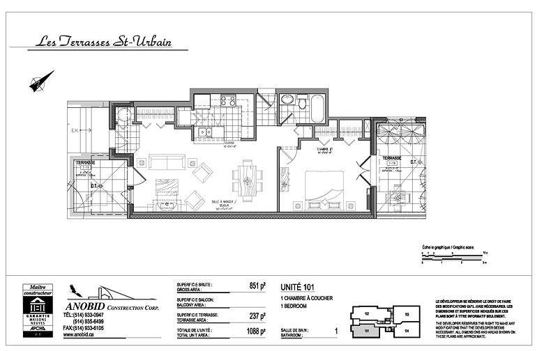
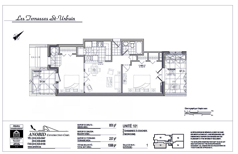
Unité 101, Rez-de-chaussée

Plan de l'unité (3 1/2) 2 chambres à coucher
Plan de l'étage
Prix
Spécifications
Terrasses


Retour au sommaire des unités - Retour au début du projet


anobid.ca