
Autres aménagements disponibles, unités disponibles séparément.
2e ÉTAGE
802 Pi²
|
MEZZANINE
468 Pi²
|
NV-01C - 2e ÉTAGE et MEZZANINE
4 ½ - 1, 270 Pi²
|

2e ÉTAGE
829 Pi²
|

MEZZANINE
429 Pi²
|
NV-11C - 2e ÉTAGE et MEZZANINE
5 ½ - 1, 258 Pi²
|

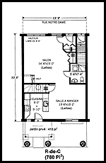
R-de-C
780 Pi²
|

1e ETAGE
610 Pi²
|
NV-02A - R-de-C et 1e ETAGE
5 ½ - 1, 390 Pi2
|
|