Maison de ville - Cours Versailles
Autres aménagements disponibles,
garage vendu séparément.


Plan du rez de chaussé

R-de-C
621 Pi²



Plan de l'étage no 1

1e ÉTAGE 
621 Pi²



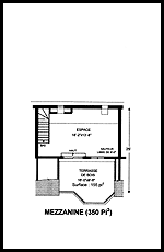
Plan de la mezzanine

MEZZANINE
350 Pi²



NV-08 - COTTAGE
5 ½ - 1, 592 Pi²


Condominium - St-Michel
Condominium - Cours Versailles